Звон и дзен #1158
Об объекте
Быстрая дорога из Москвы – всего 45 минут, а не 2-3 часа, как до большинства баз отдыха. Больше времени на отдых, меньше – в пробках.
- Уединение и гармония – дома расположены среди настоящего леса, а не просто за заборами и песком. До Москва-реки всего 650 метров по живописной тропинке.
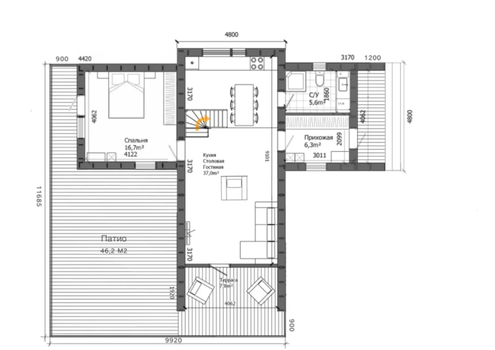
- Архитектура и стиль – просторные дома в стиле барнхаус с высокими потолками и панорамными окнами. Интерьер выполнен в эстетике джапанди – минимализм, натуральные материалы и уютная атмосфера.
- Комфорт на уровне 5-звездочного отдыха – быстрый интернет 800 Мбит/с, качественные проекторы для кино, кофемашины, посуда, халаты, стиральные машины, настольные игры. Всё продумано для вашего удобства.
- Для ценителей магии Ghibli – наши дома названы в честь героев и миров из мультфильмов Хаяо Миядзаки. Здесь можно ощутить ту самую атмосферу уюта, волшебства и единения с природой.
- На территории- на улице есть очаги, в которых тоже можно пожарить шашлыки на решетке или шампурах. А также есть мангалы.
- Дети до 3 лет бесплатно — предоставим кроватку или можно положить с собой на кровать
- Если вашим детям до 5 лет, то они могут спать с вами на кровати — это бесплатно. Если нужно дополнительное спальное место, то от 5 лет место считается дополнительно
- Можно с питомцем Стоимость 1000 руб. за весь период проживания
Мы не размещаем с собаками выше 50 см в холке, с собаками бойцовских пород и их метисами, а также с потенциально опасными животными. За каждого питомца доплата 1000 руб., предоставим миску, так как после питомца мы будем проводить более тщательную уборку помещений и всех предметов мебели в домике, в том числе стен. Чтобы избежать некомфортных ситуаций с другими гостями, возьмите с собой все необходимые принадлежности для питомца: ошейник, поводок, гигиенические пакеты для выгула. Соблюдайте правила общественных зон
Ваш идеальный отдых начинается здесь!
При заселении необходимо внести депозит в размере 10000 рублей.
согласно программе лояльности вашего банка в категории покупок Travel
Удобства и услуги
Территория
Мангальная зона -
Интернет
Бесплатно! Есть WI-FI
Общая кухня
Микроволновая печь
Кофемашина
Холодильник
Чайник
Дети
Детская кроватка по запросу
Парковка
Бесплатно! Парковка
Общее
Кондиционер
Как добраться

65 км от МКАД по Минскому шоссе

От метро Строгино на автобусе 881к до остановки Магазин №3. Там пересесть на автобус 10 и доехать до остановки Садовая улица. Далее 1,6 км пешком.

На такси из Москвы от 3000 рублей в одну сторону.
Примечания
При заселении необходимо внести депозит в размере 10000 рублей.Карта
Вы можете построить маршрут на карте
Звон и дзен : часто задаваемые вопросы
- На автомобиле: 65 км от МКАД по Минскому шоссе
- На общественном транспорте: От метро Строгино на автобусе 881к до остановки Магазин №3. Там пересесть на автобус 10 и доехать до остановки Садовая улица. Далее 1,6 км пешком.
- На такси: На такси из Москвы от 3000 рублей в одну сторону.
- MIX 94
- MIDI 68
- MINI 47
- CLT ROOM Рыбка Поньо
- CLT DACHA Ариэтти
- Mix 78 / Кики и Зизи
- Barn Max безликий
- Barn Max безликий
- Mix 78 / Кики и Зизи
Есть Wi-Fi на территории объекта.
- MIX 94
- MIDI 68
- MINI 47
- CLT ROOM Рыбка Поньо
- CLT DACHA Ариэтти
- Barn Max безликий
- Mix 78 / Кики и Зизи
Объекты рядом
Без питания
Можно с питомцем
24.69 км
от 15 120 ₽
Без питания
Можно с питомцем
24.88 км
от 8 400 ₽
Без питания
Можно с питомцем
31.81 км
от 8 000 ₽
Без питания
Можно с питомцем
32.64 км
от 8 000 ₽
Без питания
Можно с питомцем
33.86 км
от 9 200 ₽
Без питания
Нельзя с питомцем
36.18 км
от 14 200 ₽
Без питания
Можно с питомцем
38.39 км
от 9 900 ₽
Без питания
Можно с питомцем
39.41 км
от 5 600 ₽
Без питания
Можно с питомцем
39.62 км
от 11 385 ₽
Без питания
Можно с питомцем
40.74 км
от 30 000 ₽