Журавлиное гнездо #900


Об объекте
Уютный коттедж с панорамными окнами и террасой
Наш коттедж очаровывает гостей с первых минут пребывания. Построенный из натуральных материалов, он отличается продуманной планировкой с разделением зон сна и отдыха, а также оригинальным встроенным освещением и удобной мебелью, которые добавляют комфорта и естественности обстановке.
«Фрегат»
Коттедж с крышей необычной каплевидной формы, круглыми окнами в стиле иллюминатора в спальне и гостиной.
Элементы фасада и террасы выполнены в стиле яхтинга, а панорамные окна открывают великолепный вид на сосновый лес и озеро.
«Панорама»
Коттедж с односкатной крышей, отделанной гибкой черепицей, и навесом над уютной террасой вдоль всего дома.
Панорамное остекление гостиной и спальни обеспечивает широкий угол обзора и восхитительный вид на красивейшее озеро.
Про наши коттеджи
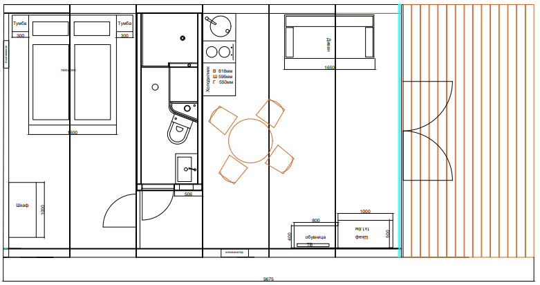
Видовая терраса: открытая терраса с уличной мебелью, рядом расположена мангальная зона.
Гостиная: просторная гостиная с панорамными окнами, кухонной зоной, раскладывающимся диваном, центральной зоной с обеденным столом и стульями.
Кухонная зона: оснащена холодильником, микроволновой печью, варочной поверхностью, эргономичной мебелью и всей необходимой посудой для приготовления пищи.
Ванная комната: душ, раковина, зеркало с подсветкой, зона для хранения вещей, набор банных полотенец, халаты, фен и средства гигиены.
Спальня: основную часть занимает двуспальная кровать с удобными прикроватными тумбочками, бра и местами для хранения одежды.
Комфорт: встроенная подсветка в помещениях, теплые полы и канальная вентиляция для удобства гостей.
Что есть на территории?
Питание — от 250 рублей.
Прокат спортивного инвентаря — от 50 рублей.
Волейбольная и детская площадки.
Пирс и песчаный пляж.
Аренда русской парной бани — от 1 500 рублей в час (минимальное время — 2 часа).
Прокат лыж, коньков, ватрушек и велосипедов — от 200 рублей в час.
Настольный теннис и бильярд — от 200 рублей в час.
Трехразовое питание в столовой — от 1 000 рублей.
согласно программе лояльности вашего банка в категории покупок Travel
Удобства и услуги
Домашние животные
Размещение домашних животных не допускается
Территория
Водоем На берегу чистого озера Большое Борково
У Воды
Баня Баня предоставляется по цене 1 500 ₽ за час до 18:00, 2 000 ₽ за час после 18:00 и 7 500 ₽ за целый день с 12:00 до 21:00 (одна топка). Минимальный заказ — 2 часа. Это уютное деревянное здание размером 8×8 метров с просторной зоной отдыха, парилкой на 10 человек, оснащённой жаркой печью Кирасир Rolling Stones Intro Black, душем и туалетом.
Мангальная зона У каждого домика оборудована мангальная зона, где гости могут бесплатно пользоваться мангалом и шампурами. Для приготовления блюд необходимо привозить остальное: угли, розжиг и другие принадлежности.
Барбекю зона У каждого домика оборудована мангальная зона, где гости могут бесплатно пользоваться мангалом и шампурами. Для приготовления блюд необходимо привозить остальное: угли, розжиг и другие принадлежности.
Развлечения
Рыбалка На берегу чистого озера Большое Борково предоставляется отличная возможность для рыбалки в окружении живописной природы. Это место идеально подходит для любителей спокойного отдыха на воде.
Велопрогулки
Коньки
Лыжи
Интернет
Бесплатно! Есть WI-FI
На территории работает мобильный интернет
Общая кухня
Микроволновая печь
Холодильник
Чайник
Общие
Ресепшн
Как добраться

50 км от КАД по Новоприозерскому шоссе

НА ЭЛЕКТРИЧКЕ: 1. С Финляндского вокзала, ст. метро Девяткино электричкой (направление Сосново, Приозерск) до ст. "Орехово". 2. От станции, по указателям. До нас по грунтовой автомобильной дороге (20-30 мин. пешком)

Из Санкт-Петербурга на такси от 2500 рублей
Карта
Вы можете построить маршрут на карте
Поблизости
Журавлиное гнездо : часто задаваемые вопросы
- На автомобиле: 50 км от КАД по Новоприозерскому шоссе
- На общественном транспорте: НА ЭЛЕКТРИЧКЕ: 1. С Финляндского вокзала, ст. метро Девяткино электричкой (направление Сосново, Приозерск) до ст. "Орехово". 2. От станции, по указателям. До нас по грунтовой автомобильной дороге (20-30 мин. пешком)
- На такси: Из Санкт-Петербурга на такси от 2500 рублей
На берегу чистого озера Большое Борково
- Фрегат
- Панорама
- Панорама
- Фрегат
Есть Wi-Fi на территории объекта.
- Панорама
- Фрегат
Объекты рядом
Без питания
Можно с питомцем
5.81 км
от 15 000 ₽
Без питания
Можно с питомцем
7.87 км
от 9 180 ₽
Без питания
Можно с питомцем
8.49 км
от 6 804 ₽
Без питания
Можно с питомцем
21.14 км
от 7 480 ₽
Без питания
Нельзя с питомцем
21.20 км
от 2 600 ₽
Без питания
Можно с питомцем
26.38 км
от 13 000 ₽
Без питания
Можно с питомцем
27.63 км
от 8 630 ₽
Без питания
Можно с питомцем
30.92 км
от 22 000 ₽
Без питания
Можно с питомцем
34.88 км
от 10 000 ₽
Без питания
Можно с питомцем
39.16 км
от 12 700 ₽